Plantegning

Samlet areal 260 m2 i overetage + 117 m2 i underetage + 50 m2 carport + 30 m2 aflåst skur

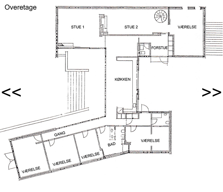
OVERETAGE

  • 260 m2
  • 2 stuer
  • 5 værelser
  • Spisekøkken
  • 3 toiletter, 2 bad

UNDERETAGE

  • 117 m2
  • Stue
  • Vaskehus
  • Teknik- og hobbyrum
  • Depot
  • Ingeniørgang

 

 

 

 

Ellemosen, Copyright © 2019 - Designed by ComputerLab - Data & Design